Amsterdam
Brederodestraat
Beschrijving:
Licht en ruim 2 kamer appartement gelegen in de gewilde Helmersbuurt op eigen grond op een toplocatie nabij het Vondelpark. De woning beschikt over een lichte L vormige woonkamer en over 2 balkons waarvan 1 extra diepe aan de achterzijde waar men kan genieten van de avondzon. Het pand is in 2006 gesplitst in appartementsrechten en de fundering van het pand is rond 2005 hersteld. De Brederodestraat is 1 van de mooiste straten in Oud West. Je zit hier midden in het bruisende leven met werkelijk alles binnen loopafstand. Zo is er het Vondelpark voor de nodige ontspanning op loopafstand. Voor kunst en cultuur wandel je zo naar het Museumplein of de binnenstad van Amsterdam. In de nabije omgeving zijn allerlei winkels voor de dagelijkse boodschappen (Jan Pieter Heijestraat en de Kinkerstraat), en gezellige horeca (o.a. De Toog, Park Zuid) en leuke shops .
Indeling:
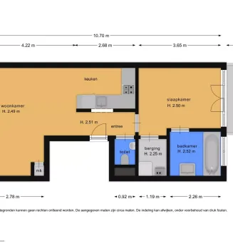
De entree is op de tweede verdieping: entree, L vormige woonkamer (met balkon) aan de voorzijde met open keuken voorzien van diverse inbouwapparatuur, toilet met vaste wastafel, wasmachine ruimte c.q. berging. Ruime slaapkamer aan de achterzijde met toegang tot het extra diepe balkon aan de achterzijde. Vanuit de slaapkamer heb je rechtstreeks toegang tot de ruime badkamer. De badkamer is voorzien van een ligbad, wastafel en een design radiator. Door het gehele appartement ligt een fraaie houten parket vloer. Het appartement kenmerkt zich doordat het een zeer licht appartement is en vanwege zijn ligging. Die is uniek midden in het bruisende leven en toch ook weer heel rustig.
Bijzonderheden:
- Licht appartement
-Fundering hersteld in 2005
-Houten (lamel)parketvloer door het gehele appartement.
-Ruime woonkamer/keuken
-Eigen grond!
-Energielabel E
-Voorbehoud gunning eigenaar
-Niet bewonersclausule van toepassing
Afspraak maken?
Maak nu eenvoudig een afspraak met Huisman Makelaardij. Ons team van ervaren makelaars staat voor je klaar om je te helpen bij de aan- of verkoop van jouw woning. Neem vandaag nog contact met ons op om een afspraak te maken en ontdek wat wij voor jou kunnen betekenen.
Snel contactKoop en verkoop, huur en verhuur met vertrouwen
Bij Huisman Makelaardij kunt u rekenen op professioneel advies en deskundige begeleiding bij het kopen, verkopen, huren of verhuren van uw woning. Ons ervaren team van makelaars helpt u bij elke stap van het proces en zorgt voor een effectieve marketingstrategie voor uw woning. Wij staan voor transparantie en betrouwbaarheid, en bieden u een eerlijke prijs en gedegen onderbouwd advies op basis van onze jarenlange ervaring in de vastgoedmarkt. Neem contact met ons op en ontdek wat wij voor u kunnen betekenen.



























