Amsterdam Deurloostraat 2-1
Deurloostraat 2-1
Bijzonder licht en stijlvol 3-kamer appartement van ca. 87 m², volledig gerenoveerd in 2020. Hoogwaardig afgewerkt met maatwerk, Piet Boon-design en een bijna 10 meter brede living. Gelegen in een rustige, groene straat in de geliefde Scheldebuurt van Amsterdam-Zuid.
Indeling
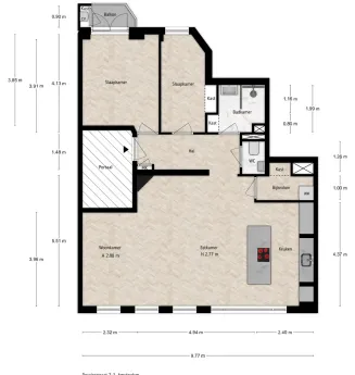
Via de voordeur op de eerste verdieping betreed je de ruime hal met garderobe en meterkast. Aan de voorzijde bevindt zich de royale zitkamer met open keuken, met een breedte van bijna 10 meter. Door de vier grote raampartijen is deze ruimte uitzonderlijk licht en heeft vrij uitzicht op de gezellige Maasstraat.
De keuken is uitgevoerd met een op maat gemaakt kookeiland, kastenwand en wijnklimaatkast. De keuken is voorzien van BOSCH-inbouwapparatuur, BORA kookplaat en een Quooker Combi+, en grenst aan een ruim opgezette bijkeuken met aansluiting voor de wasmachine.
Aan de achterzijde van het appartement liggen twee slaapkamers, beide rustig gelegen. De master bedroom biedt toegang tot het balkon.
De moderne badkamer en het separate toilet zijn ontworpen door Piet Boon en uitgevoerd met hoogwaardige materialen en designkranen uit de By Cocoon-collectie. De badkamer beschikt over een op maat gemaakt wastafelmeubel, een ruime inloopdouche en een inbouwkast.
Door het gehele appartement ligt een massief eikenhouten vloer in drie verschillende plankbreedtes, ontworpen door Enter the Loft.
Bijzonderheden
• Volledig en hoogwaardig gerenoveerd in 2020
• Instapklaar en direct te betrekken
• Licht en ruim appartement met bijna 10 meter brede living
• Luxe keuken met een op maat gemaakt kookeiland, kastenwand en wijnklimaatkast
• BOSCH-inbouwapparatuur, BORA kookplaat en Quooker Combi+
• Badkamer en toilet ontworpen door Piet Boon, met By Cocoon-producten
• In het gehele appartement massief eikenhoutenvloer, ontwerp Enter the Loft
• Twee slaapkamers, waarvan één met balkon
• separaat wc
• Gelegen in een rustige en groene straat in de populaire Scheldebuurt
• Actieve en gezonde VvE met professioneel beheer
• Goede bereikbaarheid per OV en auto
Wonen in de Scheldebuurt
De Deurloostraat is een brede, groene laan met een rustige en prettige sfeer. Gelegen tussen de Scheldestraat en Maasstraat bevinden zich op loopafstand diverse speciaalzaken, supermarkten, gezellige koffietentjes en restaurants. Voor ontspanning en sport zijn het Beatrixpark en de Amstel binnen enkele minuten bereikbaar. De buurt is geliefd vanwege haar karakteristieke jaren ’30-architectuur, rustige uitstraling en centrale ligging in de stad.
Bereikbaarheid & VvE
De bereikbaarheid is uitstekend: tram- en bushaltes bevinden zich op loopafstand en metrostation Europaplein (Noord/Zuidlijn) ligt nabij. Met de auto ben je binnen enkele minuten op de Ring A10. Parkeren is mogelijk via het vergunningenstelsel.
Vereniging van Eigenaren:
Het betreft een gezonde VvE. De servicekosten bedragen ca.€ 136,- per maand. De administratie wordt gevoerd door Adviplan. Er is een M(eer)J(aren)O(nderhouds)P(lan).
Object:
Plaatselijk bekend te 1078 HZ Amsterdam, Deurloostraat 2-1 kadastraal bekend gemeente Amsterdam, sectie V, nummer 12593, appartementsindex 2, uitmakend het 85/424e aandeel.
Erfpacht:
Het betreft eeuwigdurende erfpacht uitgegeven door de gemeente Amsterdam. De huidige periode loopt tot 31 mei 2052 en de canon bedraagt € 830,29 per jaar.
Per 1 juni 2052 bedraagt de canon €1881,09 per jaar bedragen excl. Inflatiecorrectie.
De algemene bepalingen van 2016 van toepasing.
Afspraak maken?
Maak nu eenvoudig een afspraak met Huisman Makelaardij. Ons team van ervaren makelaars staat voor je klaar om je te helpen bij de aan- of verkoop van jouw woning. Neem vandaag nog contact met ons op om een afspraak te maken en ontdek wat wij voor jou kunnen betekenen.
Snel contactKoop en verkoop, huur en verhuur met vertrouwen
Bij Huisman Makelaardij kunt u rekenen op professioneel advies en deskundige begeleiding bij het kopen, verkopen, huren of verhuren van uw woning. Ons ervaren team van makelaars helpt u bij elke stap van het proces en zorgt voor een effectieve marketingstrategie voor uw woning. Wij staan voor transparantie en betrouwbaarheid, en bieden u een eerlijke prijs en gedegen onderbouwd advies op basis van onze jarenlange ervaring in de vastgoedmarkt. Neem contact met ons op en ontdek wat wij voor u kunnen betekenen.



























