Amsterdam
Reguliersgracht 97
Bijzonder leuk en sfeervol grachtenhuis van ca.127 m2 op een geweldige locatie. Het huis heeft 3 slaapkamers, een nieuwe fundering, een dakterras en een openhaard.
Indeling:
De entree is op de beletage. Dit is een mooie eetkamer met marmeren vloer, balkenplafond en een ”Brick” muur. De halfopen keuken is 3 treden lager gelegen en goed geoutilleerd met een groot gasfornuis met dubbele oven, afzuigkap, vaatwasser, lade vriezer, 2 ijskasten en een magnetron.
Op de eerste verdieping is de zitkamer met openhaard en de toegang tot het terras dat verdeeld is over 2 niveaus.
Op de tweede verdieping is de grote slaapkamer met en-suite badkamer. Deze badkamer heeft een inloopdouche, wastafel en een wc.
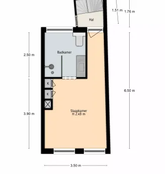
De derde verdieping is de kapverdieping met een slaapkamer, een wc, wasmachine kast en een kast met de centrale verwarming.
In het souterrain is een slaapkamer met inbouwkasten en een wc.
Bijzonderheden:
-Heel pand verdeeld over 5 verdiepingen
-Goed onderhouden
-Nieuwe fundering
-Energielabel C
-Keuken voorzien van, afwasmachine, ijskast, vriezer, inductiekookplaat, afzuigkap
-Eigen grond (geen erfpacht)
-isolerende beglazing
-Marmeren en houten vloeren
-Eenvoudig 3 slaapkamers met badkamer-en suite te maken
Afspraak maken?
Maak nu eenvoudig een afspraak met Huisman Makelaardij. Ons team van ervaren makelaars staat voor je klaar om je te helpen bij de aan- of verkoop van jouw woning. Neem vandaag nog contact met ons op om een afspraak te maken en ontdek wat wij voor jou kunnen betekenen.
Snel contactKoop en verkoop, huur en verhuur met vertrouwen
Bij Huisman Makelaardij kunt u rekenen op professioneel advies en deskundige begeleiding bij het kopen, verkopen, huren of verhuren van uw woning. Ons ervaren team van makelaars helpt u bij elke stap van het proces en zorgt voor een effectieve marketingstrategie voor uw woning. Wij staan voor transparantie en betrouwbaarheid, en bieden u een eerlijke prijs en gedegen onderbouwd advies op basis van onze jarenlange ervaring in de vastgoedmarkt. Neem contact met ons op en ontdek wat wij voor u kunnen betekenen.






















































































