Amsterdam Uiterwaardenstraat 366
Uiterwaardenstraat 366
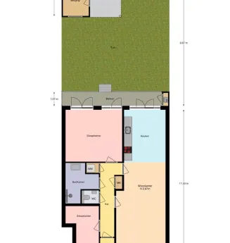
Bent u op zoek naar een hoogwaardig gerenoveerd appartement in de Rivierenbuurt van Amsterdam? Deze prachtige appartementen, een op de begane grond met tuin en een op de eerste verdieping met balkon over de gehele breedte, in de Uiterwaardenstraat bieden alles wat u nodig heeft voor comfortabel wonen. Deze appartementen zijn recentelijk totaal gerenoveerd met aandacht voor detail en hoogwaardige materialen. De ruime woonkamer is voorzien van een open keuken die volledig is uitgerust met moderne inbouwapparatuur. Of u nu een culinaire liefhebber bent of gewoon van gemak houdt, deze keuken biedt alles wat u nodig heeft. De openslaande deuren naar de tuin/balkon zorgen voor een naadloze overgang tussen binnen en buiten, ideaal voor zomerse avonden en gezellige etentjes. Daarnaast beschikken deze appartementen over 2 ruime slaapkamers waarvan 1 aan de achterzijde met toegang tot de veranda/tuin. De ruime tuin en het balkon zijn gelegen op het noordwesten tuin heeft een ruim tuinhuis. Deze gerenoveerde appartementen beschikken over nieuwe badkamers voorzien van inloopdouche en dubbele wastafels. Door de gehele appartementen ligt een fraaie houten vloer.
Ligging
De locatie van deze appartementen is simpelweg perfect. Ze liggen op het rustige stuk van de Uiterwaarden tegen over de Maarten Lutherkerk, nabij de Rai. In de nabijgelegen Maasstraat vindt u een scala aan winkels voor al uw dagelijkse boodschappen. Van gezellige buurtwinkels tot de beste delicatessen, alles is binnen handbereik. Daarnaast biedt de buurt een keur aan fantastische restaurants en cafés waar u kunt genieten van culinaire hoogstandjes en gezellige avonden uit. De appartementen hebben mede door hun breedte een zeer goede indeling en een vrij uitzicht over het plantsoen bij de kerk.
Erfpacht:
Algemene voorwaarden van de gemeente Amsterdam 2000 zijn van toepassing. De canon staat behoudens een jaarlijkse indexering vast tot
366 Canon € 901,82 per jaar. Jaarlijkse index. AB 2000. Herziening 31.01.2060.
368-I Canon € 863,18 per jaar. Jaarlijkse index. AB 2000. Herziening 31.01.2060.
Energielabel:
Het appartement heeft op 9 mei 2024 een A-label gekregen die 10 jaar geldig is.
Vereniging van Eigenaren 366 - 368:
De splitsingsakte is in 2024 bij de notaris gepasseerd. De VVE is dus net opgericht. Het modelreglement van 2006 is van kracht. Aangesteld als professioneel beheerder is VVE-tje.nl. De VVE bestaat uit 4 leden met ieder 1 stem. Servicekosten 366 zijn €282,- en van 368-I €310,- per maand.
Parkeren:
Parkeren is mogelijk op de openbare weg met vergunning dan wel betaald parkeren. Er is momenteel een wachttijd van ca. 1 maand voor de parkeervergunning. Met een elektrische auto kunt u voorrang krijgen als u aan de voorwaarden voor een milieuparkeervergunning voldoet. Een parkeervergunning kost momenteel ca. €375,- per jaar.
Vraagprijzen:
366 84m2 (huis met tuin en berging): € 1.000.000,- k.k.
368-I 83 m2 met balkon eigen opgang: € 800.000,- k.k
Afspraak maken?
Maak nu eenvoudig een afspraak met Huisman Makelaardij. Ons team van ervaren makelaars staat voor je klaar om je te helpen bij de aan- of verkoop van jouw woning. Neem vandaag nog contact met ons op om een afspraak te maken en ontdek wat wij voor jou kunnen betekenen.
Snel contactKoop en verkoop, huur en verhuur met vertrouwen
Bij Huisman Makelaardij kunt u rekenen op professioneel advies en deskundige begeleiding bij het kopen, verkopen, huren of verhuren van uw woning. Ons ervaren team van makelaars helpt u bij elke stap van het proces en zorgt voor een effectieve marketingstrategie voor uw woning. Wij staan voor transparantie en betrouwbaarheid, en bieden u een eerlijke prijs en gedegen onderbouwd advies op basis van onze jarenlange ervaring in de vastgoedmarkt. Neem contact met ons op en ontdek wat wij voor u kunnen betekenen.




































